Woonoppervlakte
Circa 118 m²
Perceeloppervlakte
Circa 257 m²
Bouwjaar
Gebouwd in 1991
Aantal kamers
4 kamers (3 slaapkamers)

Hazeleger 62

3892 WN, Zeewolde (Flevoland)

Flevopand Makelaars is bijzonder trots u deze twee-onder-een-kapwoning met garage aan te mogen bieden. Dit huis is enigszins gedateerd en behoeft modernisatie. Het is gelegen in het gewilde Zeewolde-Zuid, vlakbij strand en bossen. Deze woning heeft een speeltuintje naast de deur en is verrassend ruim, heeft 3 slaapkamers en een heerlijke achtertuin op het westen. Nog geen 5 minuten fietsen en u bent op het strand, maar ook het centrum met alle faciliteiten is per fiets goed bereikbaar. Uiteraard ook met de auto, zodat u gemakkelijk al uw boodschappen kunt doen. En wist u dat u in heel Zeewolde gratis parkeert, zelfs in de parkeergarage onder het overdekte winkelcentrum Ravelijn? De woning is snel op te leveren.

Indeling

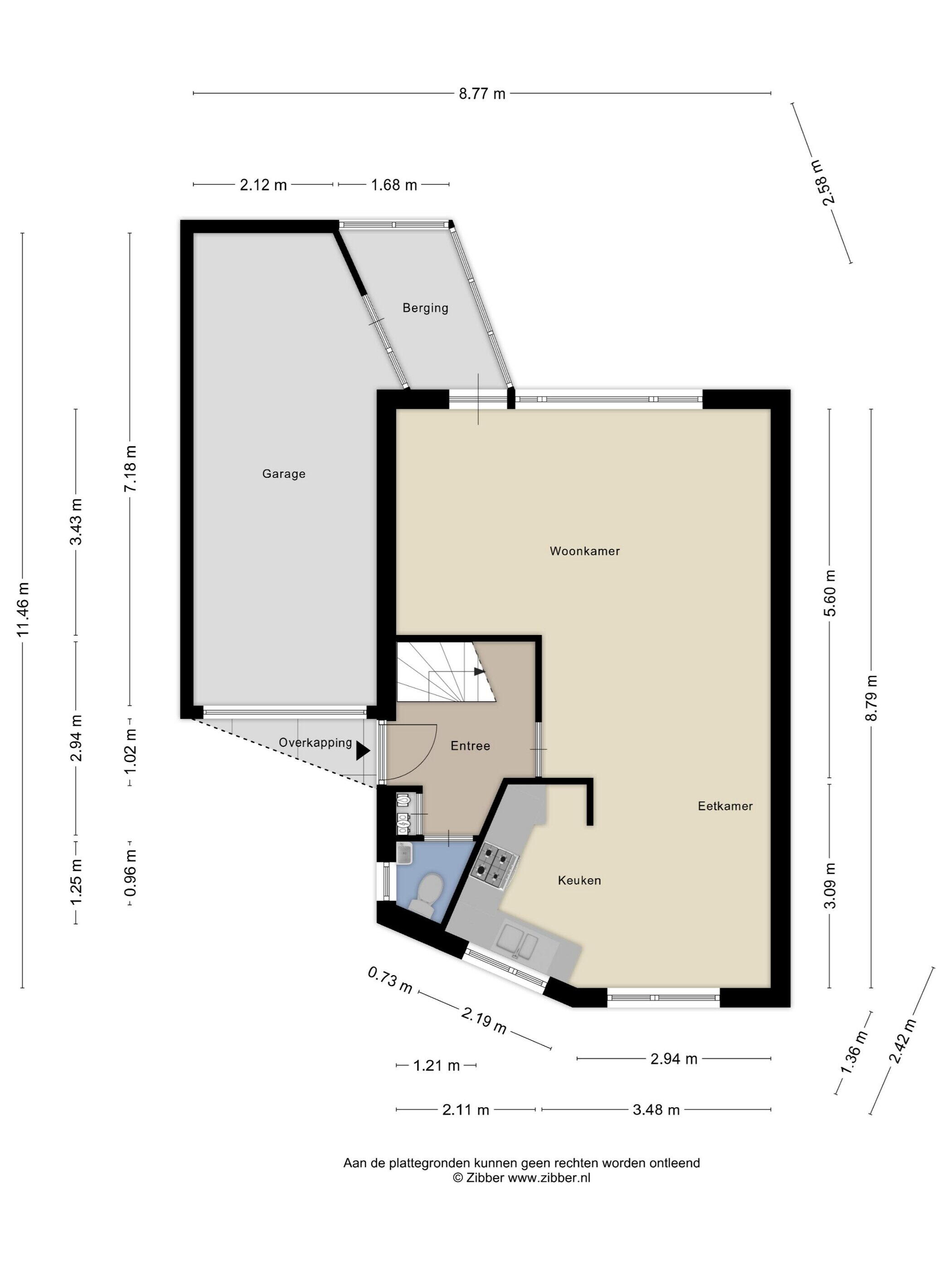
Begane grond:
Op de oprit heeft u uw eigen parkeerruimte én er is ook een garage. Via de voordeur komen we in de hal met garderoberuimte, toilet en trapopgang. Vervolgens komen we in de woonkamer, die door de grote raampartij heerlijk licht is. Van hieruit heeft u direct contact met de op het westen gelegen achtertuin met achterom. De tuin is ca. 11 meter diep en minstens net zo breed, een fijne ruimte met veel mogelijkheden. Door zijn diepte is er van 's morgens vroeg tot 's avonds laat zowel zon als schaduw in de tuin. De garage is ook vanuit de achtertuin bereikbaar middels een overkapping, zodat u bij regen droog naar de garage kunt lopen.

De keuken, die aan de voorzijde van de woning is gelegen en een speelse indeling heeft, is eenvoudig en gedateerd. Dit biedt ruimte om er uw eigen plek van te maken. Daarnaast kunt u hier prima een eettafel kwijt, waardoor er een echte leefkeuken ontstaat.

Eerste verdieping:
Op deze etage vinden we drie slaapkamers. De slaapkamer aan de voorzijde is heerlijk ruim en heeft een speelse indeling door de bouw van het huis. De tweede kamer is ook heerlijk licht en rustig gelegen. De derde slaapkamer is wat kleiner, maar nog steeds een prima kamer die op velerlei manieren kan worden ingevuld, met veel invallend licht door het grote dakraam. De gedateerde badkamer is van alle gemakken voorzien: een wastafel met meubel, een ligbad met douchewand, een tweede toilet én een aansluiting voor de wasmachine. Eenvoudig maar netjes afgewerkt met een grijze vloertegel en witte wandtegels.

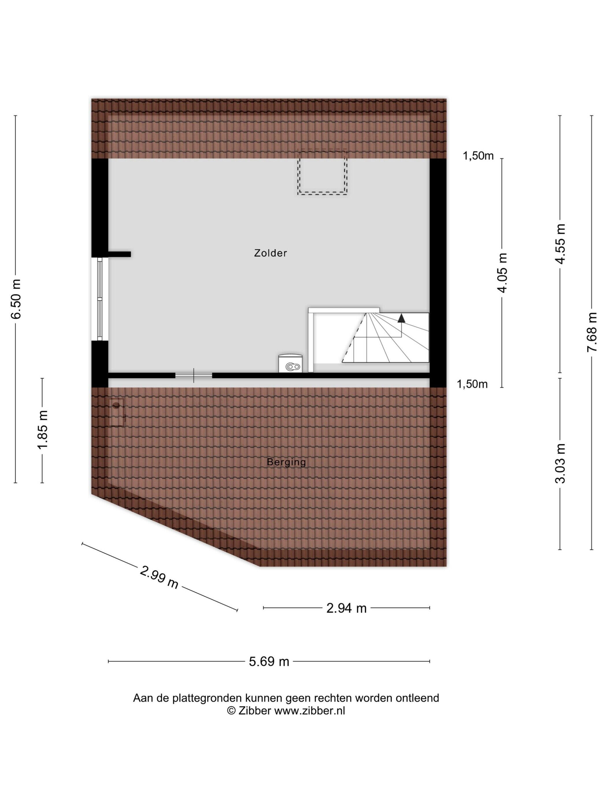
Tweede verdieping:
Via een vaste trap komen we op de tweede verdieping, waar zich de cv-installatie bevindt. Dit betreft een ruime open zolder, voorzien van zowel een zijraam als een dakraam. Eén zijde is bovendien voorzien van bergruimte. Deze ruimte is nog vrij in te vullen, maar biedt in ieder geval mogelijkheden voor nog 2 slaapkamers met voldoende lichtinval.

Bijzonderheden

- Bouwjaar 1991
- Gelegen in Zeewolde-Zuid
- Garage
- 3 slaapkamers met ruime woonzolder
- Ruime achtertuin op het westen
- Nabij strand en bossen

Omgeving

Zeewolde-Zuid is een geliefd deel van Zeewolde; ingeklemd tussen de bossen en het water, waar natuur en cultuur samenkomen. Met een korte wandeling loopt u zo het Horsterwold in, het grootste aaneengesloten loofbos in West-Europa, met onder meer het unieke natuurgebied de Stille Kern. Hier kunt u eindeloos fietsen, skaten, paardrijden en wandelen.
De Verbeelding, paviljoen voor kunst & cultuur, is niet alleen een architectonisch kunststuk, maar biedt ook een volledig cultureel programma waaronder concerten, toneel, zang, exposities en ontmoetingen. Vanaf hier heeft u bovendien een prachtig uitzicht op een ander kunstwerk: Sea Level van de Amerikaanse kunstenaar Richard Serra.
U bent ook zo op het strand van het Wolderwijd, met een kinderstrand, jongerenstrand, surfstrand en hondenstrand. Bij Fika kunt u heerlijk een kopje koffie drinken of ’s avonds genieten van een drankje en een lekkere maaltijd. In Zeewolde is in principe alles lopend of per fiets bereikbaar. Verschillende basisscholen, voor- en naschoolse opvang, middelbare school, maar ook de supermarkt en de sportschool zijn hooguit een paar minuten fietsen. De sportvelden en sporthal, waar een grote diversiteit aan sporten wordt beoefend, evenals de golfbaan, liggen als het ware om de hoek.

Kortom: een verrassend ruime woning op een toplocatie die u helemaal naar eigen smaak kunt moderniseren. Kom gauw langs en ontdek zelf de mogelijkheden!

Plattegronden

Overdracht

Vraagprijs
€ 475.000 k.k.
Status
Verkocht
Aanvaarding
In overleg

Bouw

Object type
Eengezinswoning, hoekwoning
Soort bouw
Bestaande bouw
Bouwjaar
1991
Soort dak
Zadeldak bedekt met pannen

Oppervlakte en inhoud

Woonoppervlakte
118 m²
Perceeloppervlakte
257 m²
Inhoud
501 m³
Overige inpandige ruimte
24 m²
Gebouwgeb. buitenruimte
1.5 m²

Indeling

Aantal kamers
4 kamers (3 slaapkamers)
Aantal badkamers
1 badkamers (1 toilet)
Badkamervoorzieningen
Ligbad, toilet, douche, wasbak, wastafelmeubel, wasmachine aansluiting
Aantal woonlagen
3 woonlagen
Voorzieningen
Glasvezelkabel, dakraam

Energie

Energielabel
B
Energielabel registratie
01-08-2025
Isolatie
Volledig geïsoleerd, dubbel glas
Verwarming
Cv-ketel
Warm water
Cv-ketel
Cv ketel
Niet bekend, gas, uit 2000, eigendom

Buitenruimte

Ligging
Aan rustige weg, in woonwijk
Tuin
Voortuin, achtertuin
Afmetingen voortuin
70 m² (7 meter diep en 10 meter breed)
Afmetingen achtertuin
96 m² (8 meter diep en 12 meter breed)
ligging tuin
Gelegen op het westen en bereikbaar via achterom

Bergruimte

Schuur / berging
Aangebouwde houten berging

Garage

Soort garage
Aangebouwde stenen garage
Capaciteit
1 auto

Parkeergelegenheid

Soort parkeergelegenheid
Openbaar parkeren

Energieverbruik in Zeewolde

Energielabel deze woning

Energielabel B

Publicatie energielabel: 01-08-2025

Stroomverbruik per jaar

3040 kWh

(Gemiddelde hoekwoning in Zeewolde)

Gasverbruik per jaar

890 m³

(Gemiddelde hoekwoning in Zeewolde)

* Cijfers zijn afkomstig van het CBS en bedoeld als indicatie en kunnen verschillen voor deze woning

Indicatie hypotheeklasten

Eigen inleg:
Spaargeld / overwaarde

Rente:
Laagste 10-jaars rente

Laagste 10-jaars rente

2,75% - Centraal Beheer Groen... - NHG


3,05% - Centraal Beheer Groen... - 80%

Laagste 20-jaars rente

3,52% - Syntrus Achmea Groen B... - NHG


3,79% - Syntrus Achmea Groen B... - 80%

Laagste 30-jaars rente

3,64% - Syntrus Achmea Groen B... - NHG


3,88% - Syntrus Achmea Groen B... - 80%


Hypotheek:

Bruto maandlasten: € 0 p/m

Netto maandlasten: € 0 p/m

Hoe berekenen we dit?

Het rentepercentage is gebaseerd op de laagste 10-jaars vaste rente voor één hypotheekdeel. De vermelde rente (3.05% zonder NHG) is gecontroleerd op 30-09-2025. Deze berekening is gebaseerd op een annuïteitenhypotheek die volledig wordt afgelost, waarbij de maandlasten gedurende de gehele looptijd gelijk blijven. De werkelijke rente en netto maandlasten kunnen variëren, afhankelijk van uw persoonlijke situatie en de hypotheekverstrekker. Raadpleeg een financieel adviseur voor een nauwkeurige berekening en advies. Aan deze berekening kunnen geen rechten worden ontleend; het dient enkel als indicatie.

Documentatie

Zonnegrenzen bekijken

Op de kaart

Inwoners in Zeewolde

Cijfers voor postcodegebied 3892

Totaal aantal inwoners
5335 inwoners
Mannen
50%
Vrouwen
50%

Inwoners in Zeewolde

Cijfers voor postcodegebied 3892

tot 15 jaar
15%
15 tot 25 jaar
13%
25 tot 35 jaar
19%
45 tot 65 jaar
37%
65 en ouder
16%

Huishoudens in Zeewolde

Cijfers voor postcodegebied 3892

Eenpersoons zonder kinderen
27%
Meerpersoons zonder kinderen
33%
Huishoudens zonder kinderen
60%

Huishoudens in Zeewolde

Cijfers voor postcodegebied 3892

Huishoudens met één kind
9%
Huishoudens met meerdere kinderen
31%
Huishoudens met kinderen
40%

Woningen in Zeewolde

Cijfers voor postcodegebied 3892

Woningen voor 1945
1%
Woningen tussen 1945 en 1965
1%
Woningen tussen 1965 en 1975
1%
Woningen tussen 1975 en 1985
1%
Woningen tussen 1985 en 1995
93%

Woningen in Zeewolde

Cijfers voor postcodegebied 3892

Woningen tussen 1995 en 2005
5%
Woningen tussen 2005 en 2015
2%
Woningen na 2015
1%
Huurwoningen
30%
Koopwoningen
70%

Overige in Zeewolde

Cijfers voor postcodegebied 3892

Gemiddelde WOZ waarde
€ 262.000,-
Personen onder de 65 met uitkering
7%

Overige in Zeewolde

Cijfers voor postcodegebied 3892

Adressen per km²
971
Stedelijkheid (schaal 1 op 5)
40%
Postcode kaart 3892 Gemeente kaart zeewolde

Korte feiten over Zeewolde

Zeewolde is een van de zes gemeenten van de Nederlandse provincie Flevoland, die drooggelegd is in de jaren zestig van de vorige eeuw. De gemeente telt 23.883 inwoners (1 januari 2024, bron: CBS) en heeft een relatief grote landoppervlakte van 248,76 km² (bijna twee keer zoveel als de buurgemeente Almere). Zeewolde werd in 1984 een zelfstandige gemeente en is daarmee de jongste, niet door samenvoeging ontstane, gemeente van Nederland.

Flevopand Makelaars

Indien u vragen heeft of u wilt een bezichtiging inplannen, dan kunt u gebruik maken van het formulier hiernaast. Er zal daarna op korte termijn contact met u worden opgenomen.

Raadhuisstraat 40

3891 EB, Zeewolde

036 200 2123 info@flevopand.nl www.flevopand.nl

Over Flevopand Makelaars

Veelzijdige regio

Onmetelijk veel groen, eindeloos veel water, vogels, lucht, ruimte, de dynamiek van een grote stad of juist de knusheid van een dorp? De Provincie Flevoland heeft het allemaal te bieden. Niet zo gek dus dat veel mensen hier heel graag wonen of willen wonen. Ben jij ook op zoek naar een huis in deze prettige omgeving? Wij helpen je graag op weg.

Flexibele makelaar

Of je nu op huizenjacht bent of juist je woning wilt verkopen – in een regio met zoveel gezichten is het handig om de hulp in te schakelen van een makelaar die de omgeving écht kent. Op ons kantoor is veel ervaring; 3 jaar werkzaam geweest in Amersfoort, 5 jaar werkzaam geweest in Almere, 7 jaar in Lelystad en reeds 10 jaar woonachtig in Zeewolde. Wij kennen dus de Flevolandse woningmarkt, de omgeving en de kansen. Ik heb meer dan 20 jaar ervaring opgedaan bij verschillende makelaarskantoren en ik stel die kennis graag ter beschikking aan woningzoekers en huizenverkopers in Zeewolde en omstreken.

Met vriendelijke groet,

Julian Entrop

Over Flevopand Makelaars
Reviews Flevopand Makelaars

Hazeleger 62, Zeewolde

€ 475.000 k.k. - Verkocht

Helaas, deze woning is verkocht!

Net te laat, deze woning is al verkocht. Laat een zoekopdracht bij ons achter zodat wij u direct kunnen helpen wanneer er nieuw aanbod beschikbaar komt.